• Grondoppervlakte
        • 1.791m²
        • Staat
        • Uitstekend
    • Beschrijving van pand

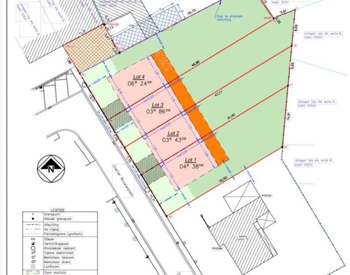
    • Uiterst centraal gelegen perceel bouwgrond bestaande uit 4 vergunde percelen (2 halfopen en 2 gesloten woningen).

      Het perceel is reeds opgesplitst en is bouwrijp.

      De ligging is fantastisch en is op een steenworp van scholen, winkels en openbaar vervoer.

      • Lot 1 = 438m²
      • Lot 2 = 343m²
      • Lot 3 = 386m²
      • Lot 4 = 624m²

      Deze bouwgrond is te koop zonder makelaar via het concept van Smart Houses! Wenst u verdere info of bezoek? Contacteer rechtstreeks de eigenaar via 0471/83.03.65.

  • Details van pand

          • Eigenschappen

              • Grondoppervlakte
              • 1.791m²
              • Staat
              • Uitstekend
          • Financieel

              • Prijs
              • € 549.000

Geen enkel pand meer missen?

    • Meld je aan voor ons pandenbestand en ontvang de panden die voldoen aan jouw zoekcriteria rechtstreeks in jouw mailbox

  • Panden ontvangen
  • d735c61795324446b4522fcfc4118814
  • € 549.000